Rénovation d'un immeuble d'habitation
Rénovation complète d’appartements dans un immeuble en hyper-centre d’Albi. Tous les biens sont destinés à la vente après rénovation.
Le projet en détail…
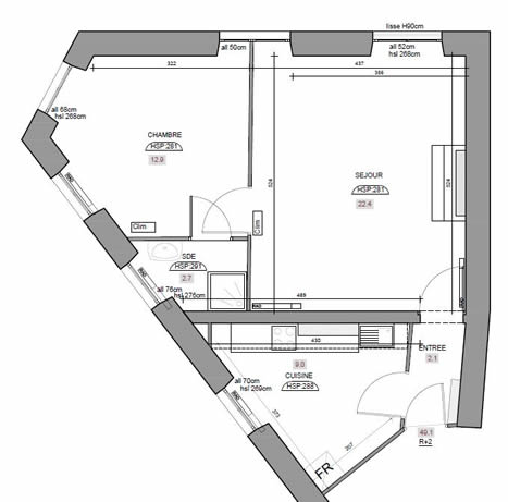
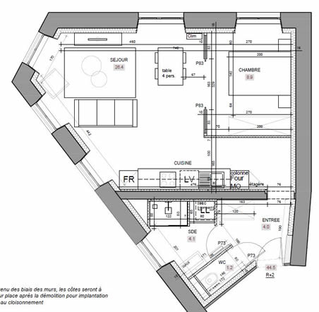
Les appartements du R+1, R+2 et R+3 étaient dans un état similaire. Rénovation classique: électricité à remettre aux normes, plomberie vétuste, chauffage à revoir etc… Ainsi que l’aménagement des pièces qui n’était pas très pertinent en l’état. Nous avons également aménagé les combles qui n’étaient pas encore utilisés. Le projet a nécessité le dépôt d’un permis de construire avec l’accord de l’Architecte des Bâtiments de France, étant dans le secteur Unesco.
Projet MG2 IMMO mis en valeur par Imagine Immobilier (Julie Laurent)
Mission conception + dossier Permis de construire
Durée des travaux: 2 mois
Photos finales par Home book photographie

















