Rénovation d'un appartement
Rénovation d’un appartement T4 en hypercentre de Toulouse: ouverture de la cuisine sur le séjour, rénovation complète de la cuisine et de la salle de bain.
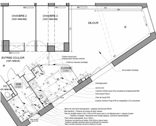
Le projet en détail…
Cet appartement au premier étage d’un immeuble près du Grand-rond à Toulouse avait été transformé en cabinet médical. Nous l’avons donc retransformé en reprenant principalement la cuisine et la salle de bain. La cuisine était fermé par des parois vitrées que nous avons entièrement déposées. L’implantation a été redéfinie, les alignements de cloisons et faux plafond également afin d’intégrer de nouveaux meubles au style moderne.
Une cuisine moderne, coloré et graphique. Crédence et sol en carreaux de ciment PETIT PAN chez Carocim (Sioux prune et Petit pois brun chamoix), meubles IKEA Voxtorp blanc
La salle de bain a été entièrement transformée avec la suppression de la baignoire pour mettre en place une douche, le changement de carrelage et faïence.
Mission conception + suivi de chantier
Durée des travaux: 2 mois


















